We will pay up to £22,500 towards your deposit!
 
Register your interest

I would like to:

Hidden
Hidden
Whittle le Woods RUFF5
Rufford 5 Phase 11
Forge 5 GH6 hero images
Rufford 5 Phase 11
Rufford 5 Phase 11
Rufford 5 Phase 11
Forge 5 GH6 hero images
Rufford 5 Phase 11
Forge 5 GH6 hero images
Forge 5 GH6 hero images
Forge 5 GH6 hero images
Forge 5 GH6 hero images
Forge 5 GH6 hero images
court 4 bedroom
Forge 5 GH6 hero images

Register your details

Call 01257 221610

Email: hilltoprise@kingswoodhomes.uk.com

Sales centre and show homes coming soon

Hill Top Lane, Whittle-Le-Woods, PR67QR

Rufford 5

Welcoming the superb Rufford 5 to Hill Top Rise – an exceptional five-bedroom detached family home designed with modern living in mind.

Part of our prestigious Homestead Collection, this elegant home draws inspiration from Georgian architecture and features signature elements including portico entrance, high ceilings, Georgian style windows, and optional coving detail throughout, creating an atmosphere of timeless elegance and spaciousness.

As you enter through the welcoming entrance hall, you’ll appreciate the thoughtful design that balances open-plan

Read More +

Excellent five bedroom home
Spacious open plan kitchen/diner/living space
Downstairs W/C and utility room
Separate snug/office/playroom
+ Show more features
Flexible floorplans
 
Floorplans

1533 ft²

Shape your home

Work/play

Whittle RUFF5 floor plans
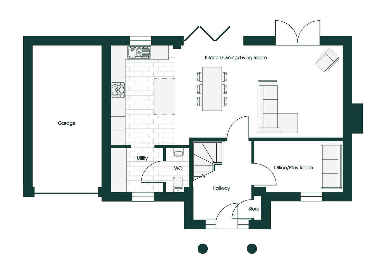
Kitchen/diner/living space 9.63m* x 4.16m* 31'7"* x 13'8"*
Office/play room 3.65m x 2.17m 12'0" x 7'1"
Utility 2.19m x 1.85m 7'2" x 6'1"
WC 1.00m x 1.85m 3'3" x 6'1"

Work/play 2

Whittle RUFF5 floor plans

Family 1

Whittle RUFF5 floor plans

Family 2

Whittle RUFF5 floor plans
Floorplans (2)
Site plan (6)
 
Hill Top Lane, Whittle-Le-Woods, PR67QR
Rufford 5

Welcoming the superb Rufford 5 to Hill Top Rise – an exceptional five-bedroom detached family home designed with modern living in mind.

Part of our prestigious Homestead Collection, this elegant home draws inspiration from Georgian architecture and features signature elements including portico entrance, high ceilings, Georgian style windows, and optional coving detail throughout, creating an atmosphere of timeless elegance and spaciousness.

As you enter through the welcoming entrance hall, you’ll appreciate the thoughtful design that balances open-plan living with practical spaces for busy family life. The hall includes a convenient storage cupboard perfect for everyday essentials.

The heart of this exceptional Rufford 5 is the spacious open-plan kitchen/diner/living space spanning the width of the home. This stunning area features bi-fold doors that open onto the turfed rear garden, creating a seamless connection between indoor and outdoor living – perfect for entertaining or relaxing with family. Additional patio doors from the living space further enhance this indoor-outdoor connection. There is a handy utility/WC off the kitchen.

To the front of the home, a versatile office/play room provides the ideal space for working from home or a dedicated children’s area.

Like all homes at Hill Top Rise, the Rufford 5 features our innovative Shape Your Home concept, giving you unprecedented flexibility to create a home that perfectly suits your lifestyle with no need to compromise.

With an impressive 16 different layout variations to choose from, the Rufford 5 is one of our most flexible house types. Ground floor options include repositioning the office/play room to the rear of the home with garden access, creating a separate living room while maintaining the open-plan kitchen/dining area, or adding a spacious family lounge while keeping the office/play room.

Upstairs, the Rufford 5 continues to impress with five well-appointed bedrooms. The master bedroom creates a true sanctuary with its en-suite and dedicated dressing area. Four additional bedrooms (including three doubles and one single) provide comfortable accommodation for the whole family, with a stylish family bathroom completing the first floor.

First floor options are equally as versatile, allowing you to transform the home into a four-bedroom design with bedroom 2 gaining an en-suite in the ‘Sleep Lux’ layout. Two further first floor options provide the opportunity to add additional en-suites or even create an office space off the master bedroom.

Every home at Hill Top Rise features our unrivalled specification, elevating your living experience with premium features as standard. Enjoy integrated AEG kitchen appliances, a smart thermostat heating system with dual zone control, Ring doorbell, turfed rear garden, EV charger, and convenient outside tap with security light.

Make your home truly yours with our range of personalisation options – choose from a selection of kitchen worktops, cupboards, and flooring, add additional sockets and switches, or customise with wardrobes and other extras.

As a HBF five-star rated builder with a remarkable 97% customer satisfaction rating, Kingswood Homes is committed to delivering exceptional quality and customer service. Our dedication to excellence ensures your new Rufford 5 at Hill Top Rise will be built to the highest standards with premium finishes throughout.

Excellent five bedroom home
Spacious open plan kitchen/diner/living space
Downstairs W/C and utility room
Separate snug/office/playroom
Four excellent sized double bedrooms
One single bedroom
Master bedroom with en-suite
Choice of floor plans with Shape Your Home
10 year warranty
Enquire now
01257 221610
Full description
 
Mortgage calculator
£

Min 50000

%

Min 1% max 20%, without '%' symbol

years

Min 1 year, max 40 years

Mortgage calculator
 
Site plan
Available
Coming Soon
Reserved
Sold
Early bird availability
Show home
Plot House Type Bedrooms Price
Plot 38
Rufford 5 5 -
Plot 41
Rufford 5 5 -
Plot 50
Rufford 5 5 -
Plot 51
Rufford 5 5 -
Plot 61
Rufford 5 5 -
Plot 81
Rufford 5 5 -